Booth Display Types & Regulations
NAMM generally follows the International Association of Exhibitions and Events (IAEE) guidelines for display rules and regulations. IAEE's revised 2019 edition has been used as a resource to create consistent and fair exhibiting standards for the NAMM events. The following display rules and regulations will be strictly enforced by the NAMM Floor Management Team. If you feel your booth space does not fit into one of these categories, please submit a booth variance request and construction request.
Variance Requests
Only exhibits that do not comply with NAMM's booth display rules and regulations must submit a booth variance request to NAMM no later than November 15, 2025. If you feel your booth space does not fit into one of these categories, please submit a booth variance request and construction request.
- NAMM Management will review all submissions carefully and respond in writing.
- NAMM reserves the right to require a structural engineer's approval.
- Approved variances are valid for the 2026 NAMM Show only.
- Variance requests will not be accepted on site.
Linear Booth
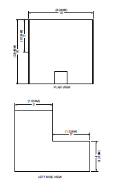
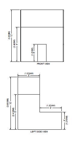
Linear booths, also called "inline" booths, are arranged in a straight line and usually have neighboring exhibitors on their immediate right and left, leaving only one side exposed to the aisle. Most commonly 10' (3.05 m.) wide and 10' (3.05 m.) deep, i.e. 10'x10' (3.05 m. by 3.05 m.).
Booth Package: Includes black 8' high draped back wall and 36" draped side rails, and 7" x 44" Company ID Sign
- The maximum back wall height limitation is eight feet (8ft) (2.44m). Exception: Perimeter booths that are linear are allowed to have a twelve foot (12ft) (3.66m) back wall.
- Regardless of the number of linear booths utilized, e.g. 10'x20' (3.05 m. by 6.10 m.), 10'x30' (3.05 m. by 9.14 m.), 10'x40' (3.05 m. by 12.19 m.), etc. display materials must be arranged in such a manner so as not to obstruct sight lines (line-of-site rule) of neighboring exhibitors. The maximum height of 8' (2.44 m.) is allowed only in the rear half of the booth space (the back 5'), with a 4' (1.22m) height restriction imposed on all materials in the remaining space forward to the aisle.
- Hardwall booths must be a minimum of nine (9) inches from the back booth line for electrical access.
- All fire equipment (hoses, extinguishers, strobe lights, speakers) must remain unobstructed and visible at all times
The diagram below is an example of what will be permitted for Linear Booth Construction



Corner Booth
A Corner Booth is a Linear Booth at the end of a series of linear or in-line booths with exposure to intersecting aisles on two sides. All guidelines for Linear Booths apply.
- All fire equipment (hoses, extinguishers, strobe lights, speakers) must remain unobstructed and visible at all times
Perimeter Booth
A Perimeter Booth is a Linear Booth that backs to an outside wall of the exhibit facility rather than to another exhibit.
Booth Package: Includes black 8' high draped back wall and 36" draped side rails, and 7" x 44" Company ID Sign
- All guidelines for Linear Booths apply to Perimeter Booths except that the maximum back wall height is twelve feet (12ft) (3.66m).
- All fire equipment (hoses, extinguishers, strobe lights, speakers) must always remain unobstructed and visible.



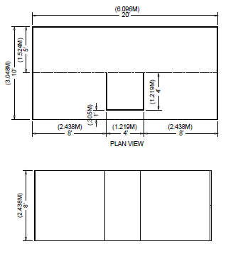
End-Cap Booth
An End-Cap configuration is an in-line (linear) booth placed in the position of a Peninsula or Split Island.
Booth Package: Includes 10 feet of black 8' high draped back wall and 36" draped side rails, and 7" x 44" Company ID Sign
- End-cap booths are generally 10ft (3.05m) deep by 20ft (6.10m) wide. The maximum back wall height allowed is 8ft (2.44m) and the maximum back wall width allowed is 10ft (3.05m) at the center of the back wall with a maximum 5ft (1.52m) height on the two side aisles. Within 5' of the 2 side aisles, the maximum height for any display materials is 4'.
- Display materials must be arranged in such a manner so as not to obstruct sight lines (line-of-site rule) of neighboring exhibitors.
- All fire equipment (hoses, extinguishers, strobe lights, speakers) must remain unobstructed and visible at all times
Peninsula Booth - Backed up to Linear Booth
Exposed to aisles on three (3) sides and is composed of a minimum of four 10' x 10' (3.05m x 3.05m) booths and backs up to Linear Booths.
Booth Package: Includes 10 feet of black back wall drape consisting of (2) 36"H x 5'W and 8'H x 10'W and 7" x 44" Company ID Sign.
- A Peninsula Booth is usually a 20' x 20' (6.1m x 6.1m) or larger. When a Peninsula Booth backs up to two Linear Booths, the back wall is restricted to four feet (4ft) (1.22m) high within five feet (5ft) (1.52m) of each aisle, permitting adequate line-of-sight for the adjoining Linear Booths.
- Sixteen feet (16ft) (4.78m) is the maximum height allowance, including signage, for the center portion of the back wall. Double-sided signs, logos and graphics shall be set back ten feet (10ft) (3.05m) from adjacent booths.
- All fire equipment (hoses, extinguishers, strobe lights, speakers) must remain unobstructed and visible at all times
Please Note: Peninsula booths located in Hall E may not exceed twelve feet (12ft) (3.658m) in height due to ceiling height limitation.



Split Island Peninsula Booth
A Split Island Booth is a Peninsula Booth that shares a common back wall with another Peninsula Booth.
Booth Package: Includes black 8' high draped back on the shared backwall, only if either exhibitor does not install a hard wall. If needed, the drape will be installed the day before the show opens.
- The entire cubic content may be used, without any back wall line-of-sight restrictions
- Sixteen feet (16ft) (4.87m) is the maximum height allowance, including signage
- If company product is Theatrical Truss, Lighting, Speakers and Fixtures, product and display fixture height may go up to a maximum of twenty feet (20ft) (6.1m) to display this product only, with NAMM's written approval - please submit a booth variance request and construction request no later than November 15, 2025.
- Multi-Story Booths will be considered and require NAMM's written approval - please submit a booth variance request and construction request no later than November 15, 2025.
- Branding, logos and graphics are not permitted over the sixteen-foot (16ft) (4.87m) height restriction.
- Complete the booth variance request for booth height allowances over (16ft) (4.87m) no later than November 15, 2025
- The common back wall must be finished with paint or drape and may not carry any branding or identification that would detract from the adjoining exhibit. All signs, branding and logos must be set back ten feet (10ft) (3.05m) from the adjoining booth
- All fire equipment (hoses, extinguishers, strobe lights, speakers) must remain unobstructed and visible at all times
Please Note: Split Island Booths located in Hall E may not exceed twelve feet (12ft) (3.658m) in height due to ceiling height limitation.



Island Booth
An Island Booth is any size booth exposed to aisles on all four sides.
- Sixteen feet (16ft) (4.87m) is the maximum height allowance, including signage
- If company product is Theatrical Truss, Lighting, Speakers and Fixtures, product and display fixture height may go up to a maximum of twenty feet (20ft) (6.1m) to display this product only, with NAMM's written approval - please submit a booth variance request and construction request no later than November 15, 2025
- Multi-Story Booths will be considered and require NAMM's written approval - please submit a booth variance request and construction request no later than November 15, 2025
- Branding, logos and graphics are not permitted over the sixteen-foot (16ft) (4.87m) height restriction.
- Complete the booth variance request for booth height allowance over (16ft) (4.87m) no later than November 15, 2025.
- Pipe and drape are not included.
- All fire equipment (hoses, extinguishers, strobe lights, speakers) must remain unobstructed and visible at all times
Please Note: Island Booths located in Hall E may not exceed twelve feet (12ft) (3.658m) in height due to ceiling height limitation.



Extended Header Booth
Extended Header Booth is a Linear Booth twenty feet (20ft) (6.10m) or longer with a center extended header.
- All guidelines for Linear Booths apply to Extended Header Booths, except that the center extended header has a maximum height of 8ft (2.44m), a maximum width of 20 percent of the length of the booth, and a maximum depth of 9ft (2.7m) from the back wall.
- All fire equipment (hoses, extinguishers, strobe lights, speakers) must remain unobstructed and visible at all times



Canopies and Ceilings
Canopies, including ceilings, umbrellas and canopy frames, can be either decorative or functional (such as to shade computer monitors from ambient light or for hanging products). Canopies for Linear or Perimeter Booths must comply with line-of-sight requirements for Linear and Perimeter Booths.
- The base of the Canopy should not be lower than seven feet (7ft) (2.13m) from the floor within five feet (5ft) (1.52m) of any aisle. Canopy supports should be no wider than three inches (3in) (.08m). This applies to any booth configuration that has a line-of-site rule, such as Linear Booth.
- Exhibitors are cautioned when installing a display with a ceiling to check with the Anaheim Fire Department to ensure that display meets with the necessary fire safety precautions involving smoke alarms, fire extinguishers, sprinkler systems, etc. Smoke alarms will be required in any covered booth.
- Covered ceiling structures or enclosed rooms, including tents or canopies, shall have one smoke detector placed on the ceiling for every 900 square feet.

Multi-Story Exhibit - IMPORTANT: Make sure to review all exhibitor fire regulations to ensure compliance.
A multi-story exhibit is a booth where the display fixture includes two or more levels.
- All multi-story exhibits must have design approval from NAMM and must submit booth diagrams to the Anaheim Fire Inspector to obtain a permit.
- Booths having received permits at past shows, must re-submit diagrams to obtain a permit for 2026. Permits apply to one show only.
- All booth diagrams are required to have a wet stamp from a California Licensed Structural Engineer.
- Complete the booth variance request no later than November 15, 2025. Requests will not be accepted onsite.
Tower
A Tower is a freestanding exhibit component separate from the main exhibit fixture.
- The height restriction is the same as that which applies to the appropriate exhibit configuration being used.
- Fire and safety regulations in many facilities strictly govern the use of towers.
- Submit drawings to NAMM for towers in excess of eight feet (8ft) (2.44m), as a building permit and safety/seismic lines may be required.
- Complete the booth variance request no later than November 15, 2025.
Hanging Signs and Graphics
Signs suspended from above or supported from below.
- Permitted upon approval in all standard Peninsula, Island and Split Island Booths, with a maximum height of sixteen feet (16ft) (4.87,) measured from the floor to the top of the sign.
- Linear, Perimeter or End-Cap booths are not permitted to have signs suspended from the ceiling.
- Refer to the floor plan in the Freeman Hanging Sign section of the Exhibitor Manual for “No Fly" areas and low ceilings.
- Whether suspended from above or supported from below, signs must comply with all ordinary use-of-space requirements (for example, the highest point of any sign may not exceed the maximum allowable height for the booth type).
- Linear Booths - Maximum height is 8ft
- Perimeter Booths - Maximum height is 12ft
- Peninsula Booth - Maximum height is 16ft
- Split Island Booth - Maximum height is 16ft
- Island Booth - Maximum height is 16ft
- Hall E - Maximum height is 12ft - ceiling suspended signs are prohibited
- Double-sided hanging signs and graphics must be set back ten feet (10ft) (3.05m) from the adjacent booths
- Approval for the use of Hanging Signs and Graphics, at any height, should be submitted for NAMM's written approval - please submit a booth variance request and construction request no later than November 15, 2025.
- Drawings should be included in submission for NAMM's review and inspection. Variances may be issued at the Organizer's discretion
Helium Balloons
Helium balloons must be confined within your booth space and should not extend beyond the boundaries into the aisles. This is crucial for maintaining smooth traffic flow and ensuring overall event safety.
Height Requirements:
Ensure that all items, including helium balloons, are positioned 18 inches below entire sprinklered ceilings or drop ceiling areas and 2 feet below unsprinklered areas, such as the Arena and a portion of the north Arena Lobby.
Helium balloons must comply with all ordinary use-of-space requirements (for example, the highest point of any sign may not exceed the maximum allowable height for the booth type).
- Linear Booths - Maximum height is 8ft
- Perimeter Booths - Maximum height is 12ft
- Peninsula Booth - Maximum height is 16ft
- Split Island Booth - Maximum height is 16ft
- Island Booth - Maximum height is 16ft
- Hall E - Maximum height is 12ft
- Double-sided hanging signs and graphics must be set back ten feet (10ft) (3.05m) from the adjacent booths.
Permit Requirements:
Anaheim Fire & Rescue does not require a permit for helium usage. However, a flame-retardant certificate is mandatory for inflatable balloons (excluding party balloons).
The accepted documentation includes a CA State Fire Marshal flame retardant certificate or documentation stating it meets NFPA 701 requirements or CPAI 87 (another USA recognized fire standard). The uploaded documents will be required for on-site verification.
Helium Cylinder Securing:
Helium cylinders must be securely fastened to a fixed object using one or more restraints or a mobile device designed for the movement of compressed gas containers. Please note that helium may not be stored on-site. Kindly arrange for your vendor to remove the tank after the balloon is inflated.
- Approval for the use of helium ballons should be submitted for NAMM's written approval - please submit a booth variance request and construction request no later than November 15, 2025.
- Drawings and fire certificate should be included in submission for NAMM's review and inspection. Variances may be issued at the Organizer's discretion.
Theatrical Truss, Lighting, Speakers and Fixtures
- All Peninsula, Island or Split Island Booths are permitted to a maximum height of twenty feet (20ft) (6.1m), where ceiling height permits, in order to display product ONLY, with NAMM's written approval.
- Branding, logos and graphics are not permitted over the sixteen-foot (16ft) (4.87m) height restriction
- Complete the booth variance request for height allowance over (16ft) (4.87m) to no later than November 15, 2025.
- Refer to the floor plan in the Freeman Hanging Sign section of the Exhibitor Manual for “No Fly" areas and low ceilings.
- Lighting, fixtures, lighting trusses or overhead lighting is not permitted outside the boundaries of the exhibit space.
Light Projection
Company product that projects lights or lasers.
- No lighting, fixtures, lighting truss, or overhead lighting are allowed outside the boundaries of the exhibit space.
- Lighting should not project onto the other exhibits or exhibition aisles. Lighting, including gobos should be directed to the inner confines of the booth space.
- Lighting that spins, rotates, pulsates and other specialized lighting effects should be in good taste and not interfere with neighboring Exhibitors or otherwise detract from the general atmosphere of the event.
- Lighting that is potentially harmful such as lasers, ultraviolet lights or flashing or strobe lights that can trigger photosensitive epilepsy should comply with the facility rules and be pre-approved in writing by NAMM.
- No logos or branding is allowed outside of the booth confines unless written permission is granted from NAMM.
- The FDA will be monitoring regulatory compliance of Laser Light Show Manufacturers and other operators of Laser Light Shows at the NAMM Show. This includes verifying that all operators have an approved Variance and are operating in accordance with any conditions imposed by the Variance.
- For questions, please contact William.Calhoun@fda.hhs.gov.
Atmospheric Effects
Theatrical fog, also known as special effect fog or haze, is a category of atmospheric effects used in the music and entertainment industry.
- The use of atmospheric effects requires approval from Anaheim Fire & Rescue, The Anaheim Convention Center and NAMM. Atmospheric Effects Demonstration Request Form Please submit request by November 15, 2025.
- The use of pyrotechnics, open flame performances, special effects and Sparkler is prohibited unless otherwise approved by NAMM, Anaheim Fire & Rescue and Anaheim Convention Center.
- The use of CO2, nitrogen or any compressed gas requires an Exhibitor Permit from Anaheim Fire & Rescue
- Effects must not interfere with or discomfort neighboring Exhibitors or otherwise detract from the general atmosphere of the event.
- It is important that atmospheric effects, such as fog, haze, and theatrical smoke effects be safe. All hazing must be water based.
- Once approved, testing must only take place onsite, Wednesday, January 21, 2026, during move in from 1:00 pm - 4:00 pm. You will coordinate with the floor manager in charge of your Hall.
- Product Demonstrations may only take place during show hours.
Lighting/Lights Out Request
Exhibitors located in Hall A may request to have the houselights above their booth switched off. Companies taking space around these booths should be prepared to supply supplementary lighting for their exhibits, as necessary.
Prior to the Show opening, Anaheim Convention Center personnel will set the lights to regular "show lighting" so exhibitors may make necessary adjustments. This will take place Wednesday, January 21, 2026, at 1:00 pm.
Please complete the Lights Out Request Form
by November 15, 2025, if you require the lights out over your booth. Please note, any on-site requests for lights out may be accommodated at the expense of the exhibiting company.
Other Important Considerations:
Americans with Disabilities Act (ADA)
- All exhibiting companies are required to be in compliance with the Americans with Disabilities Act (ADA) and are encouraged to be sensitive, and as reasonably accommodating as possible, to attendees with disabilities.
- Information regarding ADA compliance is available from the U.S. Department of Justice ADA Information Line (800-514-0301) and from the Web site https://www.ada.gov/infoline.htm.
- To avoid potential fines by the U.S. Department of Justice, exhibitors must adhere to the ADA rules. Exhibits are not exempt from ADA compliance.
Booth Activity/Crowd Control
- Booth activity of any kind must be confined within the contracted booth space so as not to interfere with traffic flow in the aisles or encroach into neighboring exhibits.
- Exhibitors must contract sufficient booth space to comply with these rules.
- When planning any type of booth activity which may draw a crowd, exhibitor is required to assign booth personnel and/or hire security guards to manage the crowd control and keep the aisles and neighboring exhibits clear.
- If necessary, NAMM reserves the right to hire security to manage crowd control at the exhibitor's expense.
Demonstrations
- As a matter of safety and courtesy to others, exhibitors should conduct demonstrations in a manner which assures all exhibitor personnel and attendees of such in-booth events are within the contracted exhibit space and not encroaching on the aisles or neighboring exhibits.
- Any queue lines formed for exhibitor customer interaction must also be contained within the booth footprint.
- it is the responsibility of each exhibitor to arrange displays, products presentations, audio visual presentations, and demonstration areas to ensure compliance with all other previously listed rules and regulations.
VIP/Celebrity Appearance Requirements
- Celebrity appearances and other promotions must be staged at the center area of your booth space to avoid impeding business from neighboring Exhibitors and creating hazards in the event of overcrowding the aisles.
- Please email TradeShowOps@namm.org with the details of your proposed performance or booth appearance including proposed event type, celebrity/ performer name, date/time, estimated attendance.
- NAMM will escort VIP/Celebrity to the booth space.
- Once at the booth, the Exhibitor is responsible for hiring crowd control security prior to the show.
Carpet/Flooring
Booth carpet/flooring is optional based on each exhibiting company's discretion.
Electrical
Every exhibit facility has different electrical requirements; however, minimum guidelines are suggested:
- All 120-volt wiring & extension cords shall be not less than 14-gauge three wire (with ground). The extension cord cannot exceed the amperage capacity it is rated for.
- An extension cord used on the floor must be flat 14-gauge three wire with a ground.
- Power strips and multi-plug adapters must be UL approved and have a current over current safety device.
- Cube adapters and other devices with multiple outlets are not acceptable unless it is equipped with an internal circuit breaker or utilized in conjunction with a power strip with an over current safety device.
- Open spliced wires are prohibited.
- Zip cords, two wire cords and lamps, lamp cords, clip on lights and fixtures are prohibited.
- All wiring must meet national, state and local electrical codes (NECA) and are subject to inspection.
- All hard wiring must be performed by the electrical contractor.
Fire Equipment
The Exhibit Facility's fire hoses and extinguishers must be visible and accessible at all times, including but not limited to those attached to a column located inside the confines of a booth.
Flammable and Toxic Material
- All materials used in display construction or decorating should be made of retardant materials and be certified as flame retardant. Samples should also be available for testing.
- Materials that cannot be treated to meet the requirements are not advised.
- A flame proofing certificate must be submitted to the Anaheim Fire Inspector prior to arrival at the show. Copies of certificates can be emailed to tradeshowinspector@anaheim.net.
- Exhibitors must dispose of any waste products they generate during the exhibition in accordance with guidelines established by the U.S. Environmental Protection Agency and the facility.
Hazardous Waste
- Hazardous waste requires special arrangements to be prepared in advance of event dismantle with either the facility or a local independent disposal company
- Exhibitors are responsible for all costs associated with such specialized removal.
Pipe & Drape
- Black pipe and drape is used to define the booth space, however it is not designed or intended to be a used as a display fixture.
- Hanging product and signs, with the exception of light weight signage or soft goods, from this is not advised and may be prohibited onsite by the NAMM Floor Management Team.
Remote-Controlled Devices
- Products such as remote-controlled cars, drones, planes, helicopters, robots, etc. are strictly prohibited on the NAMM show floor, as well as the areas surrounding the Anaheim Convention Center.
- NAMM has undertaken reasonable efforts to ensure that the NAMM Show will be a safe environment for NAMM members and their guests, and the prohibition on drones, UAV's, hoverboards and similar devices is consistent with standards of best practices for general safety.
Sound/Music
In general, the use of sound equipment in booths is permitted as long as the noise level does not disrupt the activities of neighboring exhibitors. Please refer to the NAMM Show Floor Sound Policy for additional information.
Storage
- Fire regulations strictly prohibit storing product, literature, empty packing containers or packing materials behind back drapes or under draped tables.
- Exhibitors may store a limited supply of literature or product appropriately within the booth area, as long as these items do not impede access to utility services, create a safety problem, or look unsightly.
- Violators will be notified and if not removed by show opening, NAMM will remove and store at the exhibitor's expense.
- All empty cartons or crates must be labelled and removed for storage, or they will be removed as trash. Crates or cases used for display must be masked or in exhibition suitable condition.
Structural Integrity
- All exhibit displays must be designed and erected in a manner that will withstand normal contact or vibration caused by neighboring Exhibitors, hall laborers or installation/dismantling equipment such as forklifts.
- Displays must also be able to withstand wind effects that may occur in the exhibit hall when freight doors are open. Refer to local building codes that regulate temporary structures.
- Exhibitors must ensure that any display fixtures such as tables, racks or shelves are designed and installed properly to support the product or marketing material to be displayed upon them.
Unfinished Booths
- Any portion of the exhibit bordering another Exhibitor's booth must have the back side of that portion finished with paint or drape and must not carry identification signs or other copy that would detract from the adjoining exhibit.
- Exhibitors with any visible unfinished portions to their booth prior to show opening may incur charges to have these portions finished on-site.
- Carpeting or flooring is required.
Vehicles
- Please be aware that all gas fueled vehicles used for display shall have batteries disconnected, fuel supplies at 1/4 tank or 5 gallons, whichever is less, and be furnished with locking gas caps or caps sealed with tape.
- Protection must be placed underneath all display vehicles in order to prevent any damage in the event of a leak.
- To coordinate your vehicle delivery to your booth, please contact Zach Davis at zach.davis@freeman.com.